ナナイロ食堂
店舗併用住宅へのリノベーション
群馬県利根郡片品村東小川 1403 ナナイロ食堂 2014年9月~11月

ご依頼の内容尾瀬の麓、片品村に建つグリーンの家は 将来カフェ経営を視野にいれて購入した中古建物。 数年間夏は農家、冬はスキー場のカフェに従事し いよいよ自家農園の野菜を食べてもらえる自宅兼カフェ改装へ |
リフォームコンセプト季節のうつろいを感じる豊かな風景は何よりも宝 あえて建物を迂回するアプローチがより自然に近より五感を響かせる。 飾らないオーナー夫妻のひととなりが空間となってお客さまを迎え入れるように、、 |
関連リンクhttp://ameblo.jp/7716batake/entry-11965505361.html ナナイロ食堂HP http://www.earthcolorshooting.com/ PHOTO:SHUー5 (PHOTO一部提供) |

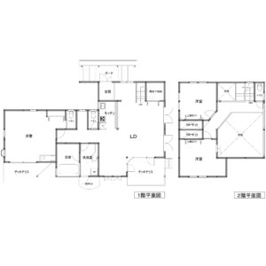
Befor別荘のような趣きのある造りは人を迎える店舗として充分な要素があります。

After1階を店舗、2階を住居に分離。南側の景観を活かせるよう客席やアプローチを配慮。
関連ワード:




















