魅力満載 夢がいっぱい~wonderful reform~
遊び心のある 幸せの家
山梨県笛吹市石和町 2014年1月~2014年8月

アフター外観 グリーンがポイントの爽やか外観
玄関 土間 ラクイタリアーナ 玉虫色の50角のタイルを敷き詰める。通り土間の再現。まずは圧巻の玄関でお出迎え
オリザの畳。新作の「藍色」をスタイリッシュにデザイン。
既存のキッチンと浴室、脱衣所が ベッドルームに。南に移動した洗面所にはベッドルームからもはいれます。
2階、キッチンから。北欧風の爽やかなカラーコーディネート
おくさまこだわりのガラスモザイクタイル。果てしなく素敵です
エイジングの白いフローリングもきっちりと収まりました。
施工中、2階、だんだんオープンになる
ビフォー。リビングにてお打ち合わせ。「二階にLDKを。既存ダイニングの位置にお風呂場を!」
ビフォー。外観
ビフォー、玄関ホールから。リビングに入るところ
リビングから キッチン、奥のダイニング
ビフォー、キッチン
ビフォー、2階。階段、不思議な廊下
ビフォー、2階。洋室と和室入口
ご依頼の内容2012年、甲府で開かれたパナホーム主催の「リフォームセミナー」 セミナー終了後、Tさまに声をかけていただいたのが始まりです。 「両親が立ててくれた二階建ての家を夫婦で継ぐことになり、明るく素敵な面白いリフォームをしたい」 若いご夫婦とパナホーム山梨のみなさんと、力を合わせてリフォームをさせていただくことになりました。 |
リフォームコンセプト遊び心のある 心躍る 魅惑の リフォームを! |

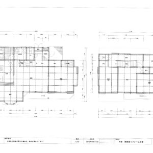
Before 玄関正面にリビング。閉鎖されたキッチンと、続くダイニング。広いのですが、リビングでのくつろぎ感がイマイチ感じられない間取りでした。サニタリーは寒く。2階の3部屋も使い勝手が多少悪いものでした。

After 玄関前に 広い通り土間。左手におしゃれな和室。藍色のグラデーション。 南に洗面所を移設、新質とつながります。2階はオープンなLDK+多目的室。天井を上げてすみずみまで家の魅力をご披露しました。
関連ワード:




















