verdissimoトップページへverdissimoトップページへ 施工事例の紹介施工事例の紹介 プランニング・コンセプトプランニング・コンセプト 掲載メディア情報掲載メディア情報 お問い合わせお問い合わせ

団塊世代の家族愛! スローライフリフォーム

本庄市 F様邸  2008年10月~2009年3月 施工

ご依頼の内容

大繁盛のカラオケ店を閉め、思い出の土地で二世帯同居。
かけがえのないスローライフの実現

リフォームコンセプト

豊かなスローライフを楽しむ独立ある共有


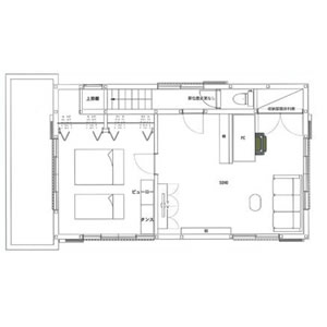
玄関移設、窓増設


2F

関連ワード:

施工事例のカテゴリー

セカンドライフこだわりリフォーム
古民家再生リフォーム
マンションリフォーム
オフィス・民宿等リフォーム
二世帯住宅リフォーム
新築(戸建て住宅・グループホームなど)

ソロモン流
おり座
大改造!!劇的ビフォーアフター
江口惠津子ブログ
ヴェルディッシモFacebook

セカンドオピニオン実施中

我が家のスローリード・リフォーム
模様替えのきほん

margherita
インテリア産業協会
JAFICA