verdissimoトップページへverdissimoトップページへ 施工事例の紹介施工事例の紹介 プランニング・コンセプトプランニング・コンセプト 掲載メディア情報掲載メディア情報 お問い合わせお問い合わせ

元社宅(築31年RC造平屋物件)を一家族用別荘にリフォーム

別荘リフォーム

栃木  

ご依頼の内容

リフォームコンセプト

寒冷地環境を配慮してペアガラスを使用
ブラウンを基調としたドア、フローリングで落着いた色調にし
アクセントにグリーンをタイル、珪藻土、キチンで入れる
既存の厨房も個室にすることで3ベッドルームの別荘に


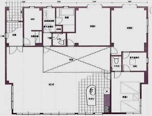
Before


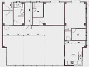
After

関連ワード:

施工事例のカテゴリー

セカンドライフこだわりリフォーム
古民家再生リフォーム
マンションリフォーム
オフィス・民宿等リフォーム
二世帯住宅リフォーム
新築(戸建て住宅・グループホームなど)

ソロモン流
おり座
大改造!!劇的ビフォーアフター
江口惠津子ブログ
ヴェルディッシモFacebook

セカンドオピニオン実施中

我が家のスローリード・リフォーム
模様替えのきほん

margherita
インテリア産業協会
JAFICA