verdissimoトップページへverdissimoトップページへ 施工事例の紹介施工事例の紹介 プランニング・コンセプトプランニング・コンセプト 掲載メディア情報掲載メディア情報 お問い合わせお問い合わせ

家づくりは家族の歴史づくり

~しあわせの間取り~

神奈川県 H様邸  2009年3月~7月 施工

ご依頼の内容

A4用紙いっぱいのご要望と雑誌の切り抜きを送っていただき、
最優先のご要望は、日当たり・風通しの良い家、収納スペースを増やすことでした。

リフォームコンセプト

お子様と楽しく過ごす、明るく・暖かい家


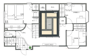
Before


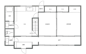
After

関連ワード:

施工事例のカテゴリー

セカンドライフこだわりリフォーム
古民家再生リフォーム
マンションリフォーム
オフィス・民宿等リフォーム
二世帯住宅リフォーム
新築(戸建て住宅・グループホームなど)

ソロモン流
おり座
大改造!!劇的ビフォーアフター
江口惠津子ブログ
ヴェルディッシモFacebook

セカンドオピニオン実施中

我が家のスローリード・リフォーム
模様替えのきほん

margherita
インテリア産業協会
JAFICA