verdissimoトップページへverdissimoトップページへ 施工事例の紹介施工事例の紹介 プランニング・コンセプトプランニング・コンセプト 掲載メディア情報掲載メディア情報 お問い合わせお問い合わせ

実りをよろこぶ家

米原・T様邸  2012年3月~6月 施工

ご依頼の内容

金沢のマンションより単身赴任し、大阪に勤めるご主人さま。
通勤圏で田舎暮らしを叶えられる中古物件を購入し定年後のあらたな暮しを夢見るご夫婦。
新しい間取りには仲間を呼んでワイワイやれる空間を...

リフォームコンセプト

40年の歳月を経た力ある柱・梁にカンナが入り芳しい木の香りで再び包まれる。
価値ある菜園の実りを眺め暮らす家に。

関連リンク


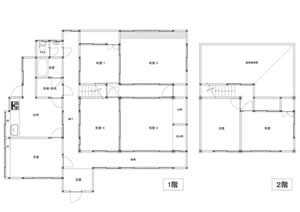
Before


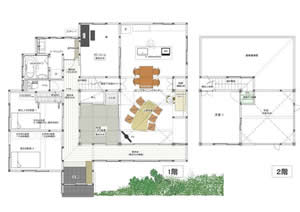
After

関連ワード:

施工事例のカテゴリー

セカンドライフこだわりリフォーム
古民家再生リフォーム
マンションリフォーム
オフィス・民宿等リフォーム
二世帯住宅リフォーム
新築(戸建て住宅・グループホームなど)

ソロモン流
おり座
大改造!!劇的ビフォーアフター
江口惠津子ブログ
ヴェルディッシモFacebook

セカンドオピニオン実施中

我が家のスローリード・リフォーム
模様替えのきほん

margherita
インテリア産業協会
JAFICA