わたしも住みたい こんな素敵な「老後の家」
マンションリフォーム
Aさま邸 2010年10月~12月 施工

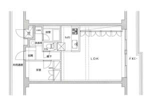
ご依頼の内容さいたまの立派な3階建てに一人暮らしの、奥さま70代。 なくなったご主人がかねてより賃貸に出していた、 かちどき橋のベイエリアマンションに、引っ越しすることになりました。 車いすも対応し、コンパクトな都会生活を愉しみたい。 |
リフォームコンセプト1LDKの間取りから、ワンルームに。 光を取り入れ、景色を愉しみ、若々しい 元気の出るインテリアで 都会生活を 満喫いたしましょう。 都会の暮らしはいいですね! 病院近し、観劇、デパートお買い物もお気軽、都バスで15分圏内です。 お子様たちも、遊びに来るのが楽しくなりますね。 |

Before

After
関連ワード:




















