光踊る「帰りたい家」
豊島区 I様邸 平成23年12月~平成24年2月 施工

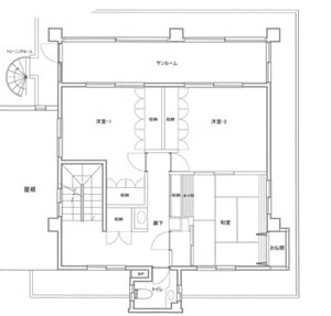
ご依頼の内容築43年のRC3階建て住宅。 御夫婦そして御子息の3人家族。 元々、伯父家族の住いであったところを受け継ぎ、理想の住いへと段階的にリフォームを進めながら今回いよいよ3階部分のリフォームへ。 和室を含む3階フロアーを御子息専用のライフスタイルの変わる空間へ |
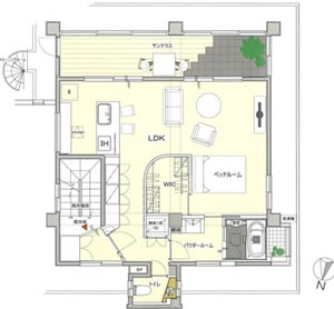
リフォームコンセプト「帰りたい家」 シティーライフを愉しむ、光踊るのびやか回遊プラン。 昼間は暖かな日差しに包まれ 夜は静かに輝く街の灯かりに包まれる |
関連リンク |

Before

After
関連ワード:




















