verdissimoトップページへverdissimoトップページへ 施工事例の紹介施工事例の紹介 プランニング・コンセプトプランニング・コンセプト 掲載メディア情報掲載メディア情報 お問い合わせお問い合わせ

癒しの和風もだん

民宿リフォーム

静岡県東伊豆:宮田荘様  2006年6月 施工

ご依頼の内容

開業30年の民宿リニューアル。
宮田荘 :http://miyatasou.net/

リフォームコンセプト

開業30年の民宿リニューアルリフォーム。
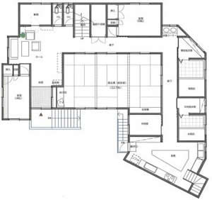
エントランスホールを中心に広がるくつろぎの空間「癒しの和風もだん」でお客様をおもてなし。


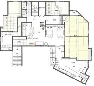
Before


After

関連ワード:

施工事例のカテゴリー

セカンドライフこだわりリフォーム
古民家再生リフォーム
マンションリフォーム
オフィス・民宿等リフォーム
二世帯住宅リフォーム
新築(戸建て住宅・グループホームなど)

ソロモン流
おり座
大改造!!劇的ビフォーアフター
江口惠津子ブログ
ヴェルディッシモFacebook

セカンドオピニオン実施中

我が家のスローリード・リフォーム
模様替えのきほん

margherita
インテリア産業協会
JAFICA