verdissimoトップページへverdissimoトップページへ 施工事例の紹介施工事例の紹介 プランニング・コンセプトプランニング・コンセプト 掲載メディア情報掲載メディア情報 お問い合わせお問い合わせ

家族の笑顔があふれる家

埼玉県 S様邸  平成22年9月 施工

ご依頼の内容

緑豊かな埼玉県新座市の物件。
築11年と比較的築年数の浅い物件でしたが、
娘様ご夫婦との同居を機に二世帯住宅へリフォームすることになりました。

リフォームコンセプト

ご両親、若夫婦、お孫さんの総勢7人の大家族になるので、
みんなが自然と集まるスペースと、互いのライフスタイルを尊重した
プライベートなスペース、両方を併せ持ったプランニングを心がけました。

関連リンク


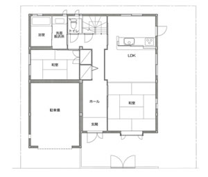
Before


After

関連ワード:

施工事例のカテゴリー

セカンドライフこだわりリフォーム
古民家再生リフォーム
マンションリフォーム
オフィス・民宿等リフォーム
二世帯住宅リフォーム
新築(戸建て住宅・グループホームなど)

ソロモン流
おり座
大改造!!劇的ビフォーアフター
江口惠津子ブログ
ヴェルディッシモFacebook

セカンドオピニオン実施中

我が家のスローリード・リフォーム
模様替えのきほん

margherita
インテリア産業協会
JAFICA