久我山の家
木造在来工法 新築
東京都杉並区 2013年7月~11月

ご依頼の内容久我山の高台に位置するこちらの物件。 建物の老朽化を期に建て替えのご要望です。 遠くには富士山、眼下には神田川の桜を望む絶好のロケーション。 窓から広がる四季折々の景色を愛でながら、ゆったりと過ごせる空間を ご依頼頂きました。 |
リフォームコンセプト2階はキッチンを中心にしたオープンなスペースになってますが、 和室、ロフトへと高低差をつけて縦にも楽しめる空間に。 回遊動線のキッチンは、夜はバーカウンターに変身。 ワイングラスを片手にお友達との楽しい会話がはずみます。 階段やファサードは曲線でかたち作り、柔らかさや癒しを感じる空間に仕上げました。
|
関連リンク |

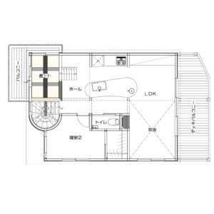
1Fプラン

2Fプラン
関連ワード:デザインリフォーム































