verdissimoトップページへverdissimoトップページへ 施工事例の紹介施工事例の紹介 プランニング・コンセプトプランニング・コンセプト 掲載メディア情報掲載メディア情報 お問い合わせお問い合わせ

きちんと寝室タイプ

鉄飛坂賃貸マンション

目黒区  2007年9月 施工

ご依頼の内容

都会の暮らし
“夢の描ける場所つくり”
地の利を活かし、人を惹きつける部屋。
フレキシブルな間取り、収納、明るい大空間のLDK。。。

リフォームコンセプト

賃貸マンションの一室を思い切ったリフォームで新しい客層を模索する。
都立大駅の近くという立地条件を活かし
余裕層をターゲットにデザイン性豊かな空間を創り出した。


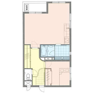
Before


After

関連ワード:

施工事例のカテゴリー

セカンドライフこだわりリフォーム
古民家再生リフォーム
マンションリフォーム
オフィス・民宿等リフォーム
二世帯住宅リフォーム
新築(戸建て住宅・グループホームなど)

ソロモン流
おり座
大改造!!劇的ビフォーアフター
江口惠津子ブログ
ヴェルディッシモFacebook

セカンドオピニオン実施中

我が家のスローリード・リフォーム
模様替えのきほん

margherita
インテリア産業協会
JAFICA