verdissimoトップページへverdissimoトップページへ 施工事例の紹介施工事例の紹介 プランニング・コンセプトプランニング・コンセプト 掲載メディア情報掲載メディア情報 お問い合わせお問い合わせ

2プラス4の二世帯住宅・・・伝えてゆきたいのは、いたわる心

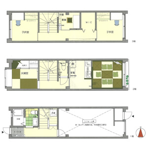
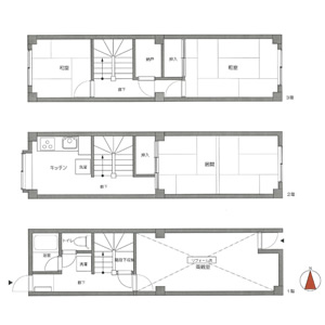
築30年鉄骨1戸建(3F)二世帯リフォーム

東京都  

ご依頼の内容

介護をふまえて奥様の実家への同居となる二世帯住宅へのリフォーム
狭隘かつ日当たりの悪い住居を家族6人の快適な住まいへ。

リフォームコンセプト

3層にまたがり、個々になりがちな空間の中で家族の集いたくなる場所を設ける。


Before


After

関連ワード:

施工事例のカテゴリー

セカンドライフこだわりリフォーム
古民家再生リフォーム
マンションリフォーム
オフィス・民宿等リフォーム
二世帯住宅リフォーム
新築(戸建て住宅・グループホームなど)

ソロモン流
おり座
大改造!!劇的ビフォーアフター
江口惠津子ブログ
ヴェルディッシモFacebook

セカンドオピニオン実施中

我が家のスローリード・リフォーム
模様替えのきほん

margherita
インテリア産業協会
JAFICA