日本デザインをリスペクト。都心の小別邸。
築30・RC造マンションリフォーム
東京都 R様邸 2008年2月 施工

ご依頼の内容現在、国外に在住。 賃貸貸しとしていた所有するマンション1室をご自身の家族4人で利用するセカンドハウスとしてリフォーム。 伝統的な和空間を好む。 |
リフォームコンセプト和の文化を愛する施主様の明確なイメージと集約されたライフスタイルをコンクリートの箱の中に実現。 夜もまた借景のビルの灯りは幾重にもの行灯となり上質な時間を創りだす。 |

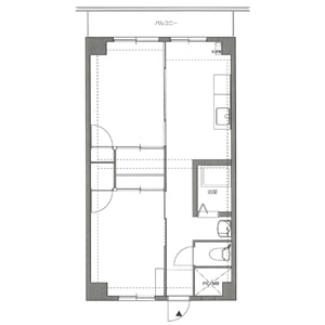
Before

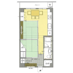
After
関連ワード:




















